TREX SOLITUDES ARCHITECTURAL DRAWINGS
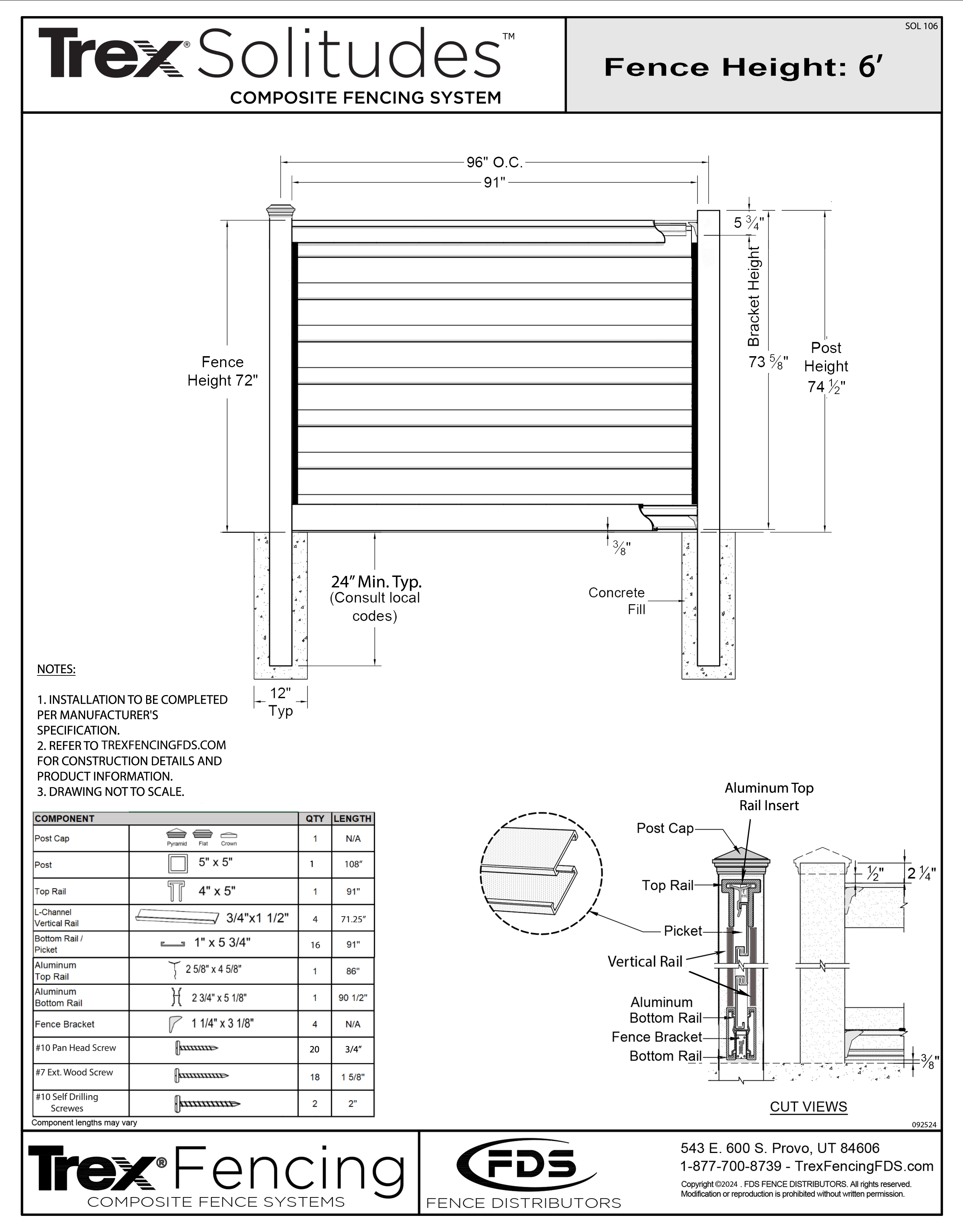
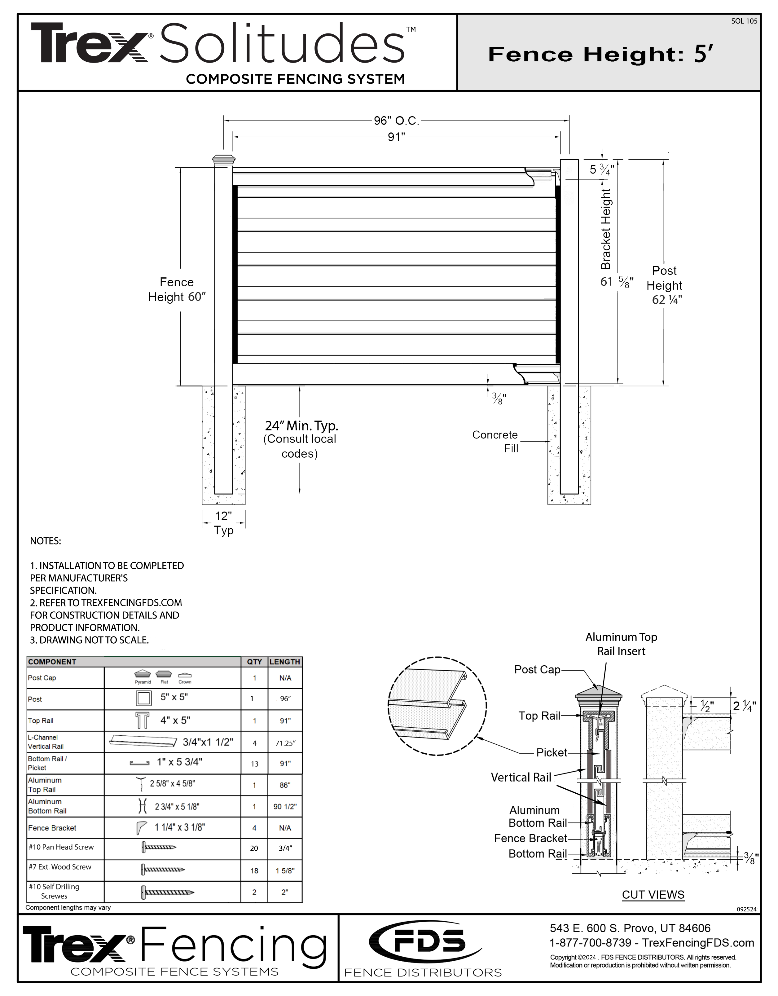
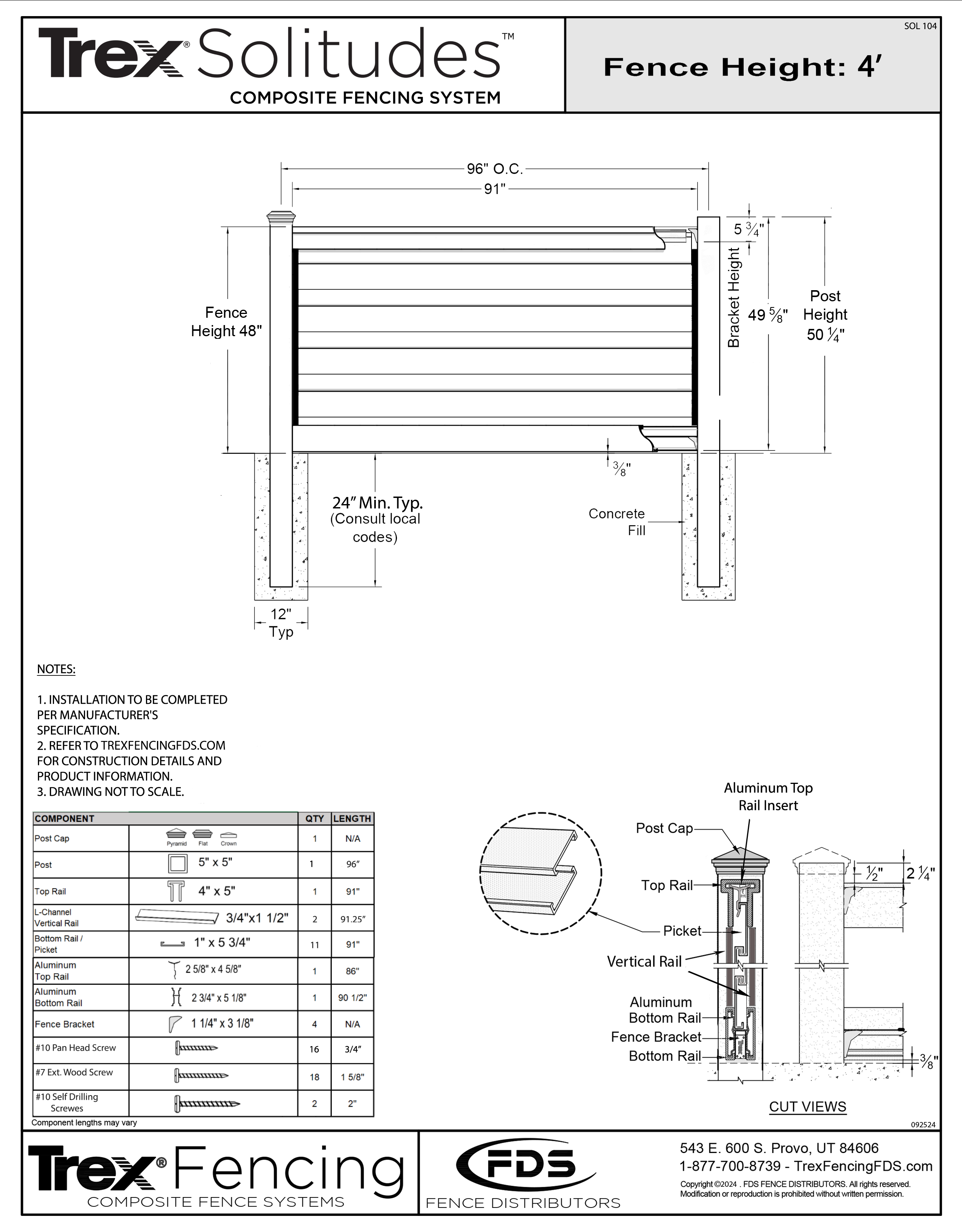
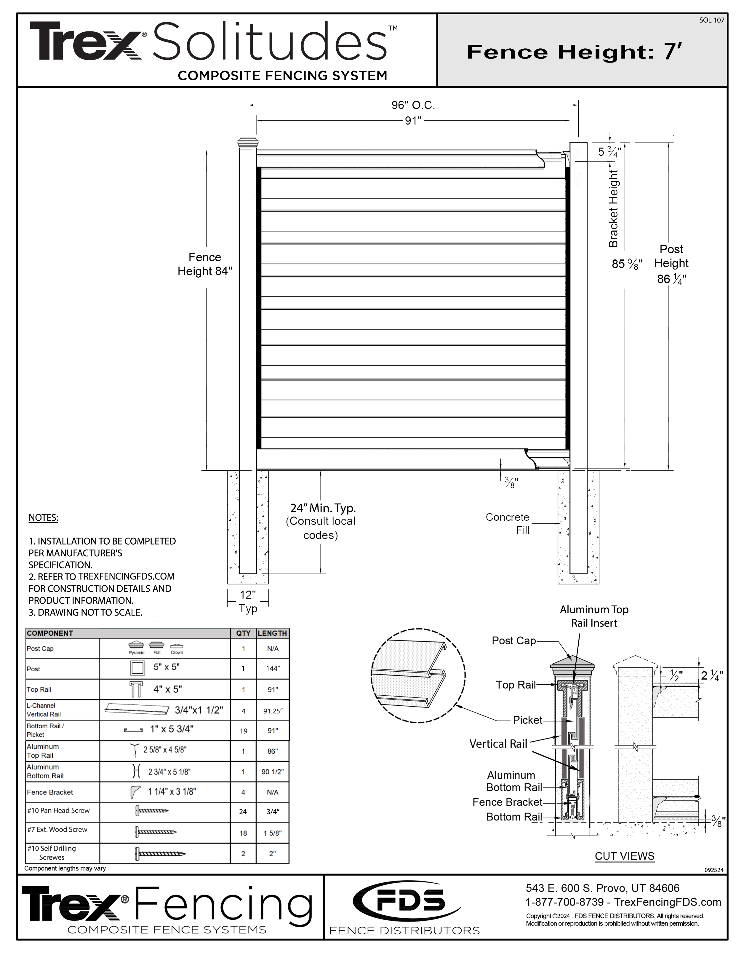
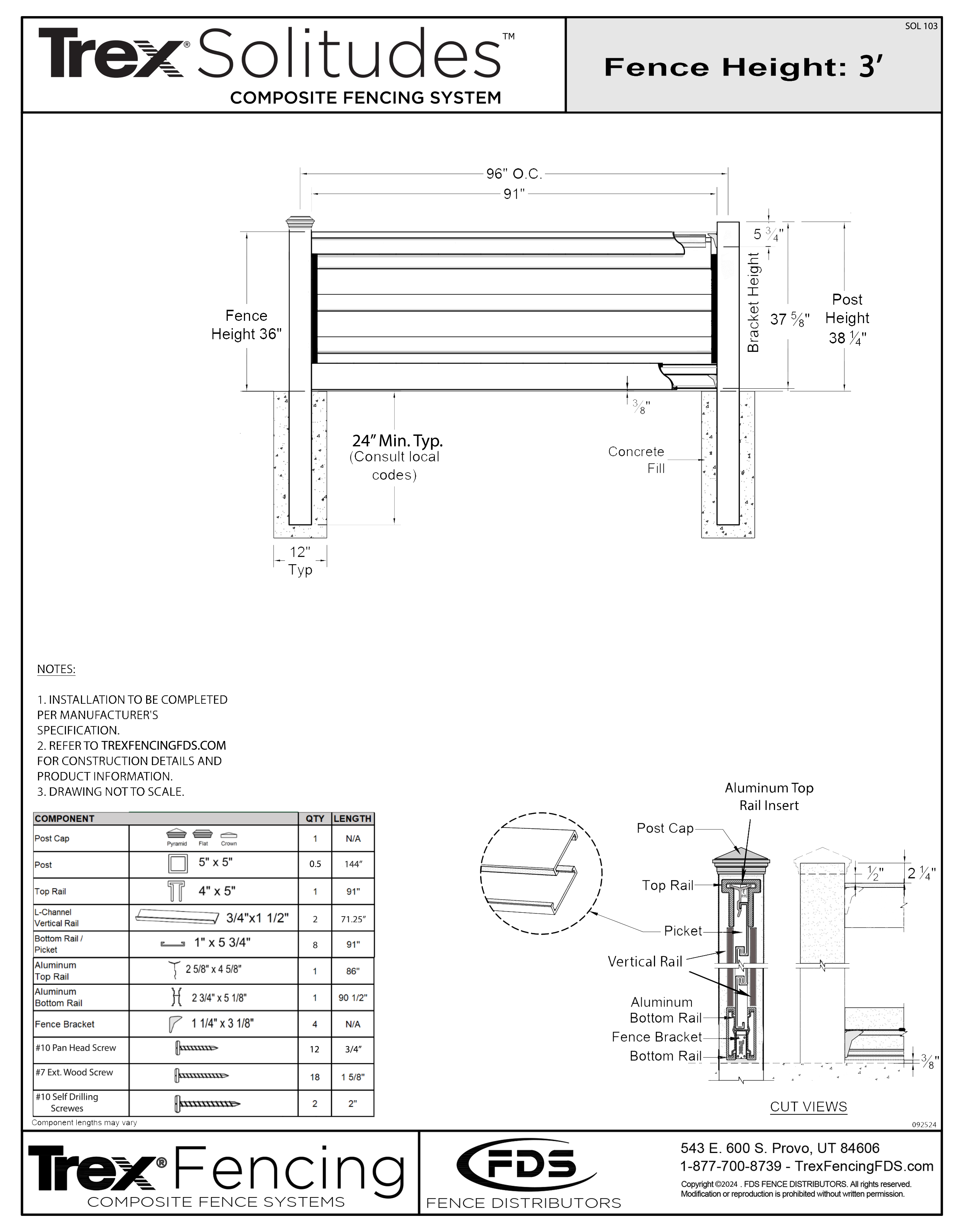
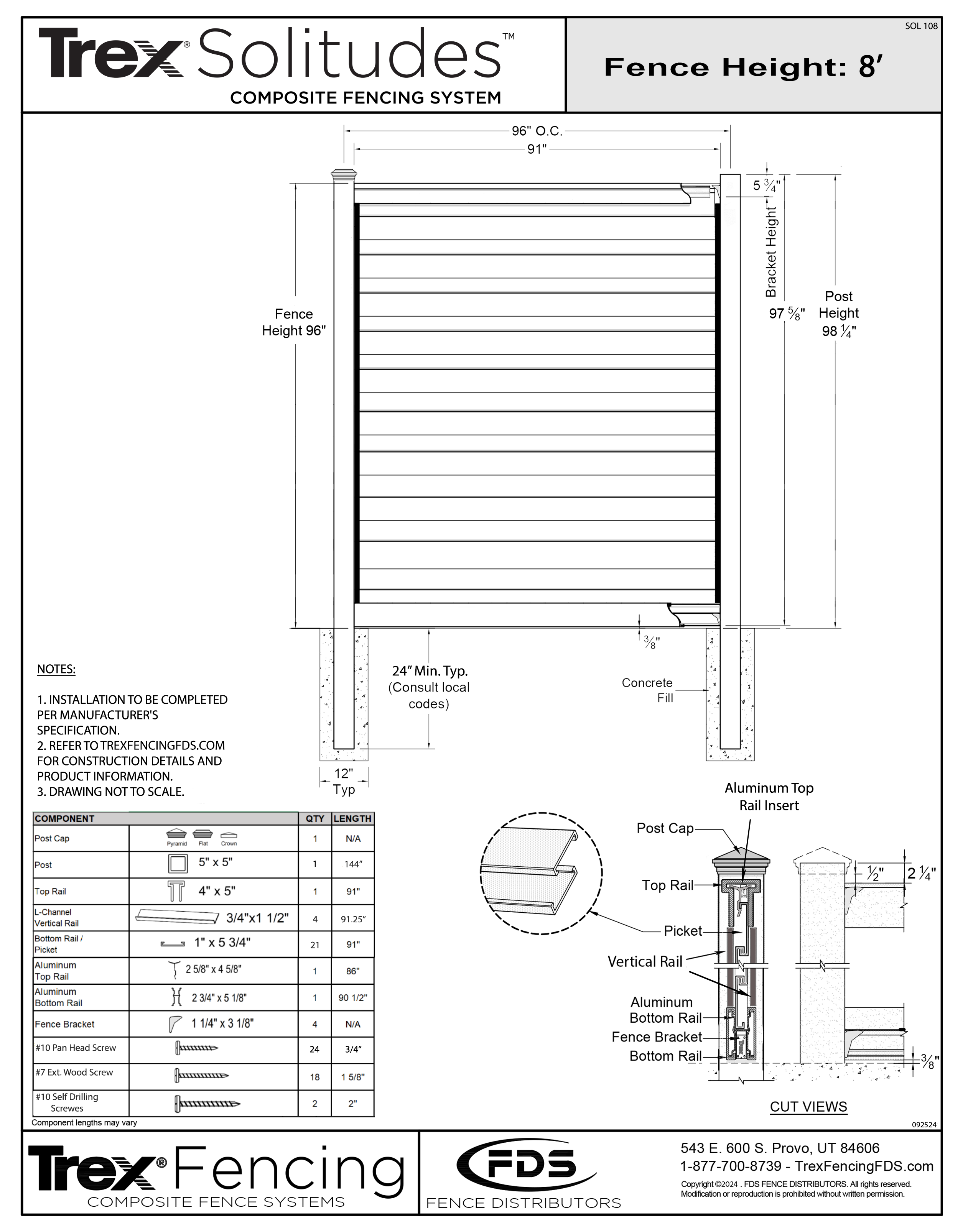
Download Solitudes privacy fence drawings for elevations from 2 ft. to 8 ft. tall (nominal). If you need additional technical resources, contact us at 877-700-8739.
Download Solitudes privacy fence drawings for elevations from 2 ft. to 8 ft. tall (nominal). If you need additional technical resources, contact us at 877-700-8739.