TREX FENCING RESOURCES
Installation Resources
Download Installation Guides in PDF format
Brief Installation Overview
Seclusions Installation
Seclusions Installation (Spanish)
Brief Installation Overview (Animated)
Seclusions Installation (Animated)
Seclusions Installation (Animated, Spanish)
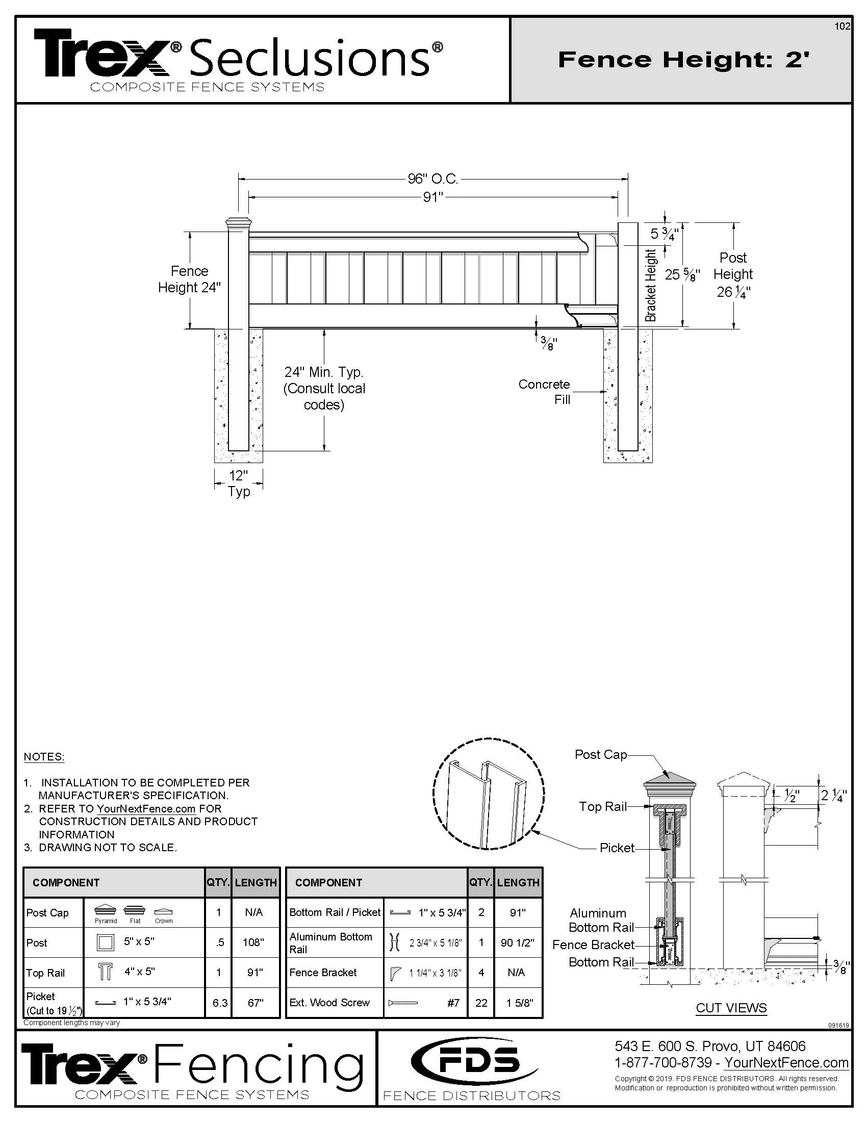
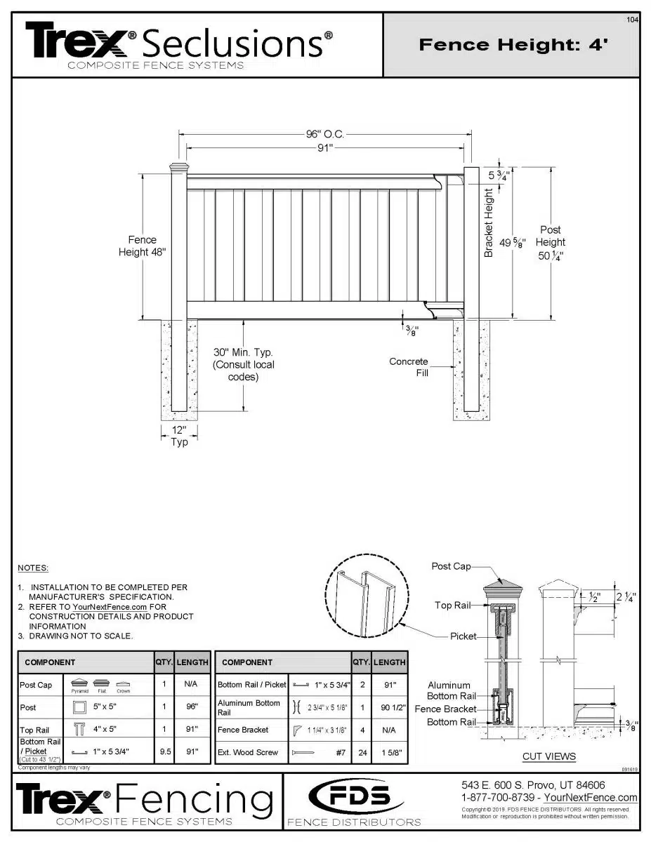
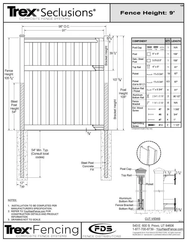
Drawings
Download fence drawings





















































